top of page

Je suis un paragraphe. Cliquez ici pour ajouter votre propre texte et me modifier. C'est facile.
Je suis un paragraphe. Cliquez ici pour ajouter votre propre texte et me modifier. C'est facile.


2021
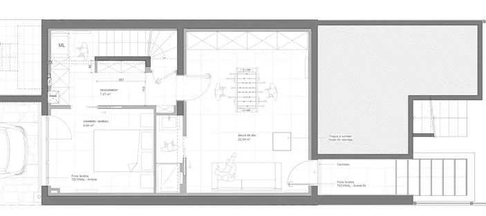
Mission : Complète
Surface : 128 m2
Statut : Chantier en cours
Rénovation complète d'une maison
MONTREUIL

Nice - Côte d'Azur - © Studio ND Architecture 2025
bottom of page













